Vivienda G19
Renders






Gráficos




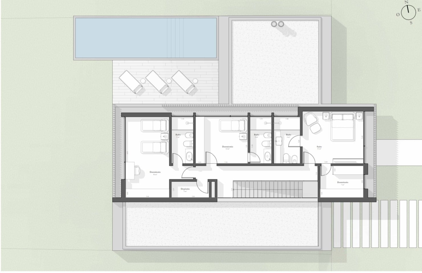
El encargo del anteproyecto fue solicitado bajo la firma del estudio Bodega & Piedrafita Arquitectos. El cliente solicitó el diseño de una vivienda unifamiliar que contemple tres dormitorios ubicados en planta alta, y un amplio espacio integrado en planta baja que combine living, cocina y comedor en un solo ambiente, con una vinculación directa hacia la galería exterior, la cual incluirá un parrillero techado y una piscina contigua. Además, se proyectó una segunda etapa que comprenderá una cochera cerrada, un dormitorio de servicio y un espacio de usos múltiples.
Ubicación
Cavas de la Tahona, Canelones
Año
2022
Etapa
Anteproyecto
Vivienda G19
El encargo del anteproyecto fue solicitado bajo la firma del estudio Bodega & Piedrafita Arquitectos. El cliente solicitó el diseño de una vivienda unifamiliar que contemple tres dormitorios ubicados en planta alta, y un amplio espacio integrado en planta baja que combine living, cocina y comedor en un solo ambiente, con una vinculación directa hacia la galería exterior, la cual incluirá un parrillero techado y una piscina contigua. Además, se proyectó una segunda etapa que comprenderá una cochera cerrada, un dormitorio de servicio y un espacio de usos múltiples.
Ubicación
Cavas de la Tahona, Canelones
Año
2022
Etapa
Anteproyecto
Renders






Gráficos




