Pablo Pérez 4328
Renders



Gráficos



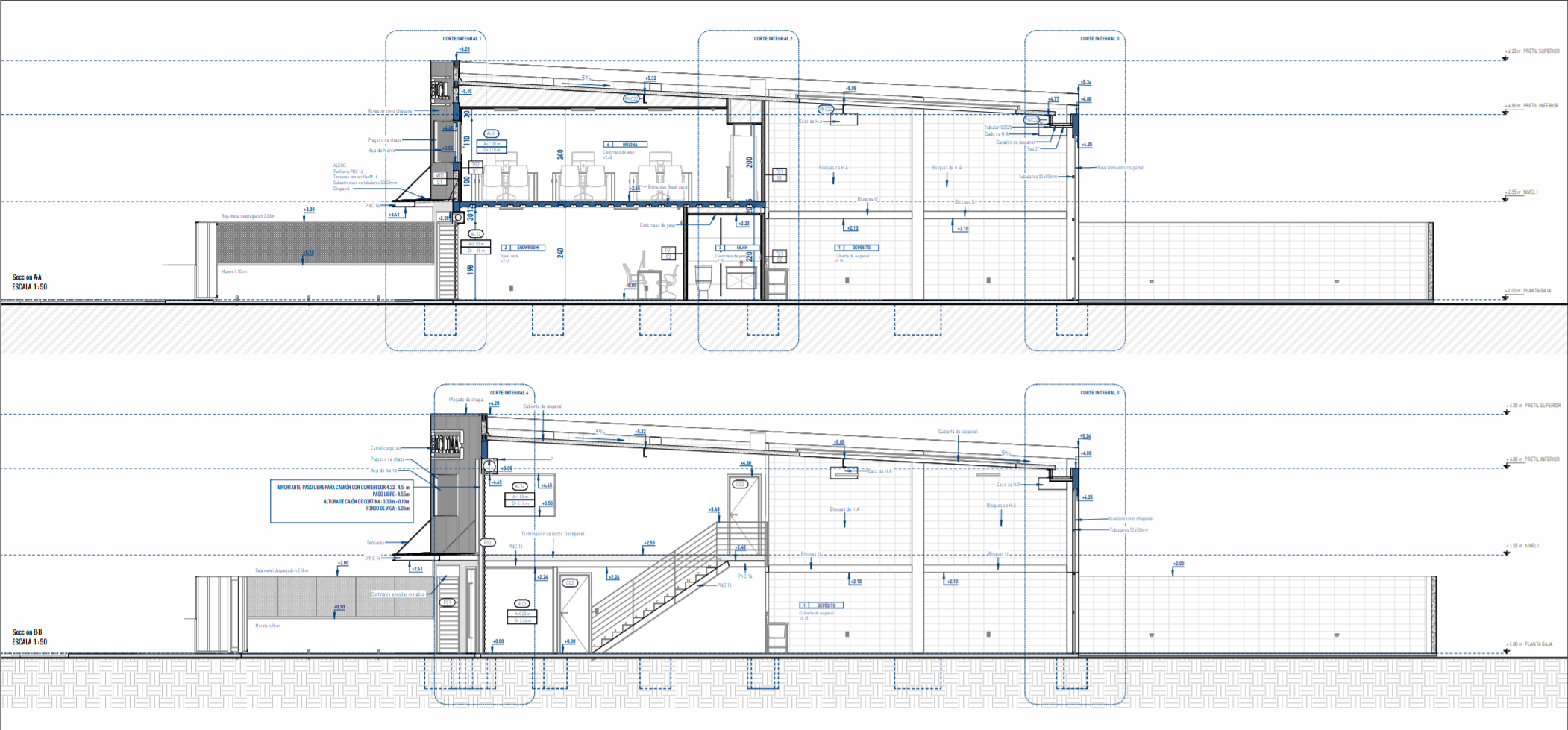
El encargo realizado bajo la firma de Otlas S.A consistió en desarrollar el proyecto ejecutivo completo para un espacio que integra showroom, taller y oficina. La propuesta contempló la construcción de un galpón desde cero, con estructura de hormigón armado, cerramientos de mampostería y un entrepiso de steel deck. Las áreas de oficina y showroom se conforman mediante tabiquería de yeso y cerramientos vidriados. Todo el conjunto se cubre con una cubierta liviana tipo Isoroof, que incorpora lucernarios para favorecer la iluminación natural.
Ubicación
Montevideo, Uruguay
Año
2025
Etapa
Proyecto ejecutivo
Pablo Pérez 4328
El encargo realizado bajo la firma de Otlas S.A consistió en desarrollar el proyecto ejecutivo completo para un espacio que integra showroom, taller y oficina. La propuesta contempló la construcción de un galpón desde cero, con estructura de hormigón armado, cerramientos de mampostería y un entrepiso de steel deck. Las áreas de oficina y showroom se conforman mediante tabiquería de yeso y cerramientos vidriados. Todo el conjunto se cubre con una cubierta liviana tipo Isoroof, que incorpora lucernarios para favorecer la iluminación natural.
Ubicación
Montevideo, Uruguay
Año
2025
Etapa
Proyecto ejecutivo
Renders



Gráficos



