Luis Alberto de Herrera 1339
Renders


Gráficos



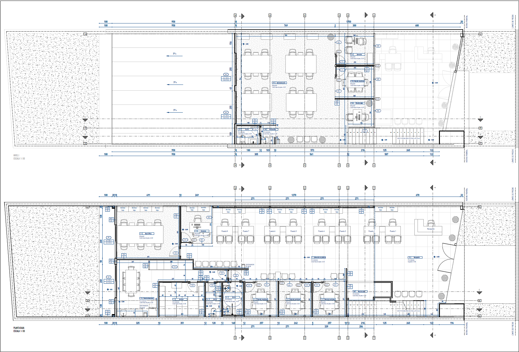
El encargo realizado bajo la firma de Otlas S.A consistió en el diseño y ejecución de un local comercial con una fachada atractiva y un interior flexible, adaptable a diversos usos. El espacio fue finalmente ocupado por la empresa Anda para el funcionamiento de sus oficinas comerciales.
La obra se desarrolló en su mayoría mediante un sistema de construcción en seco, lo que permitió una ejecución ágil y eficiente. La fachada, revestida en paneles de aluminio compuesto, combinada con un diseño lumínico cuidadosamente planificado, aporta una fuerte presencia visual que capta la atención de quienes transitan por la avenida, logrando así un impacto estético distintivo y moderno.
Ubicación
Buceo, Montevideo
Año
2025
Etapa
Obra realizada
Luis Alberto de Herrera 1339
El encargo realizado bajo la firma de Otlas S.A consistió en el diseño y ejecución de un local comercial con una fachada atractiva y un interior flexible, adaptable a diversos usos. El espacio fue finalmente ocupado por la empresa Anda para el funcionamiento de sus oficinas comerciales.
La obra se desarrolló en su mayoría mediante un sistema de construcción en seco, lo que permitió una ejecución ágil y eficiente. La fachada, revestida en paneles de aluminio compuesto, combinada con un diseño lumínico cuidadosamente planificado, aporta una fuerte presencia visual que capta la atención de quienes transitan por la avenida, logrando así un impacto estético distintivo y moderno.
Ubicación
Buceo, Montevideo
Año
2025
Etapa
Obra realizada
Renders


Gráficos



